ЖК Дмитріївський
-
Від: Катерина
До: Одеська міська рада -
Доброго дня!
На підставі статей 1, 13, 19, 20 Закону України «Про доступ до публічної інформації» від 13 січня 2011 року, які надають право звертатись із запитами до розпорядників інформації щодо надання публічної інформації, прошу надати наступну інформацію (наступні документи):
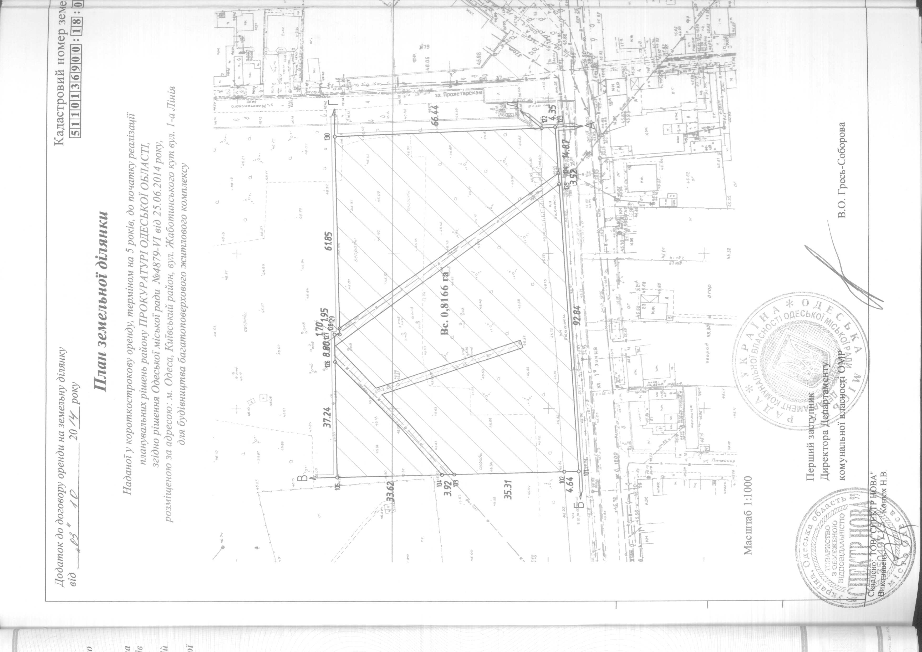
1. Копію містобудівних умов та обмежень від 26.01.2015 № 01-06/5 на нове будівництво багатоквартирного будинку, замовник - Прокуратура Одеської області.
2. Надати інформацію про земельні ділянки з кадастровими номерами 5110136900:18:017:0049, 5110136900:18:017:0051 та 5110136900:18:017:0053 у тому числі копії договорів оренди та права постійного користування земельною ділянкою.
3. Надати копії дозвільних документів на будівництво за адресою: м. Одеса, Київський район, Люстдорфська дорога, 55/6 та вул. Жаботинського, кут вул. 1-а Лінія.
4. Надати інформацію, чи проводилися за вказаними адресами заходи державного архітектурно-будівельного контролю.
З повагою,
Катерина



